Construction sans obstacles
122/103.3
| Standard | SNBS-Bâtiment 2023.1 |
| Cycle de contrôle | Certification provisoire (CP) |
Grandeur mesurée 1 : Exigences de base
Documents justificatifs :
-
CP : Autorisation de construire ou confirmation de l'ouverture des travaux
-
CD : Réception des travaux ou autorisation d'emménagement
Grandeur mesurée 2 : Exigences accrues
Documents justificatifs :
- Outil d'aide rempli
- Plans / extraits de plans
Commentaires :
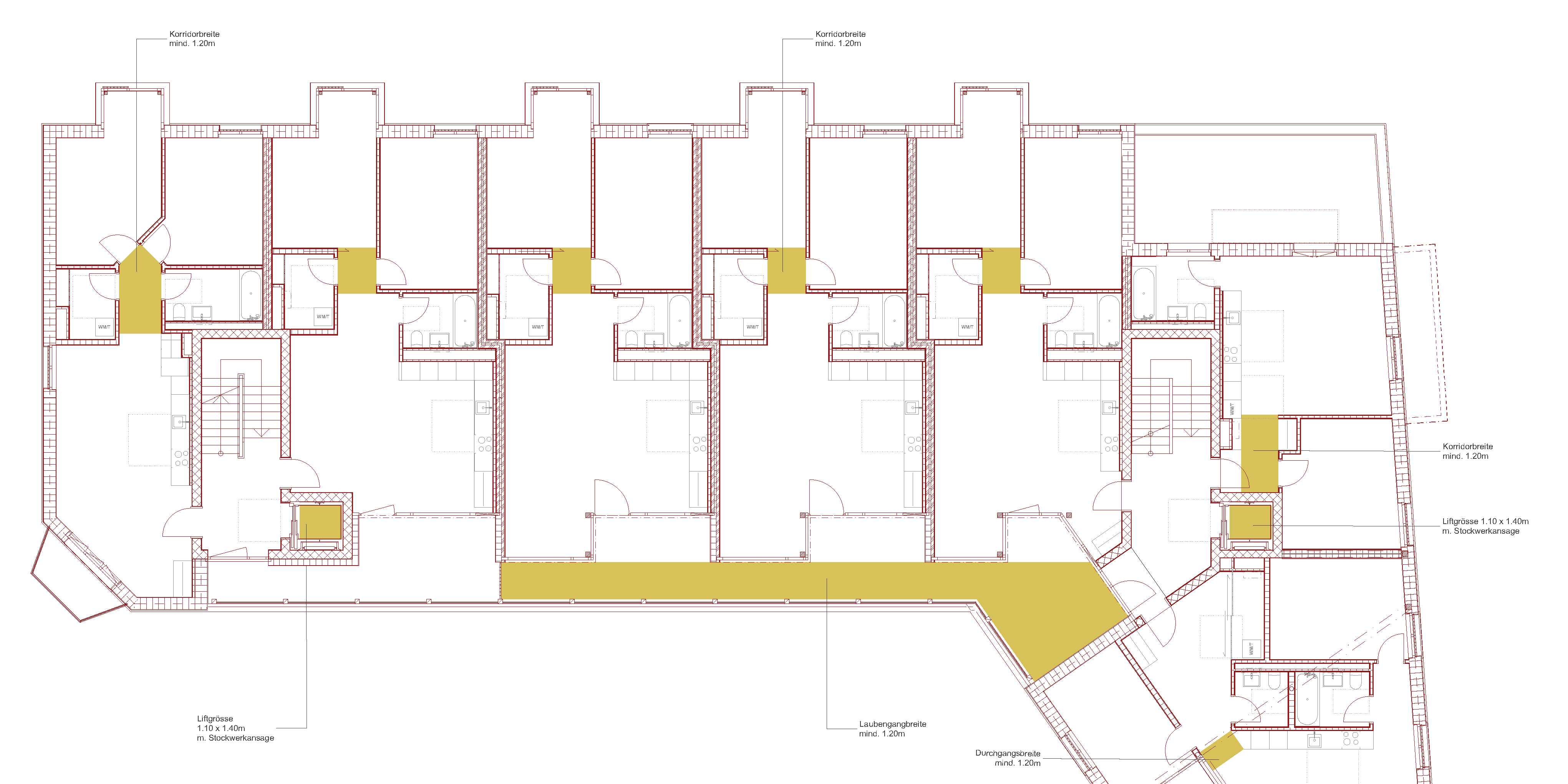
Remplir l'outil d'aide pour le critère 122 Construire sans obstacles et y joindre les plans/extraits de plans correspondants afin que l'auditeur puisse trouver rapidement les mesures dans le projet.
Exemple de justificatif des exigences accrues déclarées à l'aide de plans :

Illustration 1 : Justificatif des exigences accrues en matière d'absence d'obstacles dans le plan - rez-de-chaussée (Auteur : jessenvollenweider architektur, Projet : immeuble d'habitation et de bureaux Hauptstrasse 2 à Brugg, 21.05.2024)

Illustration 2 : Justificatif des exigences accrues en matière d'absence d'obstacles dans le plan - rez-de-chaussée (Auteur : jessenvollenweider architektur, Projet : immeuble d'habitation et de bureaux Hauptstrasse 2 à Brugg, 21.05.2024)

Illustration 3 : Justificatif des exigences accrues en matière d'absence d'obstacles dans le plan – étage standard (Auteur : jessenvollenweider architektur, Projet : immeuble d'habitation et de bureaux Hauptstrasse 2 à Brugg, 21.05.2024)

Illustration 4 : Justificatif des exigences accrues en matière d'absence d'obstacles dans le plan – étage standard (Auteur : jessenvollenweider architektur, Projet : immeuble d'habitation et de bureaux Hauptstrasse 2 à Brugg, 21.05.2024)